| |
 |
|
|
|
 |
|
 |
| |
| DIY - Forum Do It Yourself for Non-Fishing Items |
 |
|
02-16-2025, 12:57 PM
|
#31
|
|
Registered User
Join Date: Nov 2003
Location: RI
Posts: 21,508
|
Quote:
Originally Posted by Rmarsh
Thats me in the oven 
|
You look really, really great.
Finally a layout I could cook in. Does the oven have a dedicated vent or does it cycle back into the room?
|
|
|
|
|
02-16-2025, 01:24 PM
|
#32
|
|
Registered User
Join Date: Jan 2006
Posts: 1,974
|
Quote:
Originally Posted by spence
You look really, really great.
Finally a layout I could cook in. Does the oven have a dedicated vent or does it cycle back into the room?
|
No it does not. You noticed I've kept my physique...even at age 69. Younger guys at work can't believe t and I can still out produce them by working smarter.
|
|
|
|
|
02-16-2025, 03:25 PM
|
#33
|
|
Registered User
Join Date: Jan 2006
Posts: 1,974
|
Recently completed these and a few others
|
|
|
|
|
02-17-2025, 05:51 AM
|
#34
|
|
Registered User
Join Date: Jan 2006
Posts: 1,974
|
Three more new homes we are building in the Highlands of Fall River. Nice views of the river. Company I work for are experts at land acquisition. Acreage in Dighton has been in the works for a new subdivision.....they wont move on it until the time is right. We have other profitable projects going for now. By weird coincidence we are building a million dollar house across the street from me on the owners lot. I could just walk but need a truckfull of tools or im useless.
|
|
|
|
|
02-17-2025, 06:05 AM
|
#35
|
|
Registered User
Join Date: Jan 2006
Posts: 1,974
|
Quote:
Originally Posted by spence
You look really, really great.
Finally a layout I could cook in. Does the oven have a dedicated vent or does it cycle back into the room?
|
Did you notice the little MIL kitchen.... efficient and easy to clean up.
Next install wont be ready for a bit. Spence ...how is the layout.
|
|
|
|
|
02-17-2025, 08:31 AM
|
#36
|
|
Registered User
Join Date: Nov 2003
Location: RI
Posts: 21,508
|
Quote:
Originally Posted by Rmarsh
Did you notice the little MIL kitchen.... efficient and easy to clean up.
Next install wont be ready for a bit. Spence ...how is the layout.
|
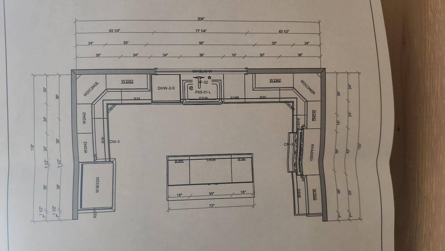
Pretty efficient, the island position at the base of the triangle will help staging between work stations, though I wonder if the area in front of the sink may get crowded if you have more than one person trying to cook and clean at the same time. If it were my house I would ask for the dishwasher to be to the right of the sink.
I know no layout is perfect and I like to beotch. As I’ve said I prefer tight kitchens and like to cook alone.
|
|
|
|
|
02-18-2025, 03:52 AM
|
#37
|
|
Registered User
Join Date: Jan 2006
Posts: 1,974
|
According to my math...i have spent well over 100,000 hours at my trade. Impossible to remember all of it except for some photos... but we seldom carried cameras with us so not many were documented. I am in the process of attempting to digitize some older 35 mm camera and Polaroid photos. Found these from about 25 years ago when I was in charge of large commercial millwork installations with six to eight finish carpenters as my crew. Banks, libraries, airports, hospitals, country clubs, retirement homes and others I dont remember. The money was good but the travel.... after a few years caused me to seek opportunities closer to home
Last edited by Rmarsh; 02-18-2025 at 04:03 AM..
|
|
|
|
|
02-18-2025, 04:58 AM
|
#38
|
|
Registered User
Join Date: Jan 2006
Posts: 1,974
|
Owner wanted a quick fix of his rotted porch posts up in Maine......owed him a big favor so made the 5 hour drive last fall. He wants more but I told him never again... i prefer sleeping in my own bed at home.
|
|
|
|
|
02-18-2025, 07:47 AM
|
#39
|
|
Registered User
Join Date: May 2009
Location: Somerset Ma
Posts: 1,884
|
Nice workmanship. Its always nice to see craftsman who take pride in their craft. I have been trying to post some pictures but for some reason it won't upload. Started as a kid in 1983, I wish I had taken more pictures as I became a better carpenter but we didn't have phones in those days. I was a stair builder for a few different companies and that is a very rewarding craft. I did the stairs in Drew Bledsoe's house many years ago. 3 stacked curved stair cases with a 12' glass octagon ceiling above it. Very difficult project. Now I am building for a company out of Tiverton and its all high end clients. It amazes me where all the money comes from. They sure have deep pockets.If I can figure out whats wrong with my picture uploading I will get a few posted.
|
|
|
|
|
02-18-2025, 07:58 AM
|
#40
|
|
Registered User
Join Date: Jan 2006
Posts: 1,974
|
Quote:
Originally Posted by Hookedagain
Nice workmanship. Its always nice to see craftsman who take pride in their craft. I have been trying to post some pictures but for some reason it won't upload. Started as a kid in 1983, I wish I had taken more pictures as I became a better carpenter but we didn't have phones in those days. I was a stair builder for a few different companies and that is a very rewarding craft. I did the stairs in Drew Bledsoe's house many years ago. 3 stacked curved stair cases with a 12' glass octagon ceiling above it. Very difficult project. Now I am building for a company out of Tiverton and its all high end clients. It amazes me where all the money comes from i will get a few posted.
|
Thanks ....please do. It is becoming a rare skill set these days. I've built complete stairways with a handsaw and block plane back in the seventies. I used a D23 disston twelve point on oak treadst to cut a fine pencil mark right down the middle...including returns on open treads...with mitered skirt boards. We would put a three eights bevel on the top edges of skirtboards with a block plane 60 1/2p Stanley low angle
Last edited by Rmarsh; 02-18-2025 at 08:50 AM..
|
|
|
|
|
02-18-2025, 11:48 AM
|
#41
|
|
Registered User
Join Date: Jan 2006
Posts: 1,974
|
|
|
|
|
|
02-19-2025, 03:01 AM
|
#42
|
|
Registered User
Join Date: Jan 2006
Posts: 1,974
|
Whole house renovation underway....90's home in pretty bad shape. Owner has moved on to another home and wants to upgrade just about everything before putting on the market. The stair railing job and alot of other finish carpentry was hacked by amateurs
|
|
|
|
|
02-19-2025, 05:34 AM
|
#43
|
|
Registered User
Join Date: Jan 2006
Posts: 1,974
|
Tools of the trade back a few decades ago. I still prefer the folding lufkin rule for inside measurements. The spiral ratchet is just for nostalgia and to get a laugh out of the youngins.
And some of the crap work im going to fix.
|
|
|
|
|
02-19-2025, 08:54 PM
|
#44
|
|
Registered User
Join Date: May 2009
Location: Somerset Ma
Posts: 1,884
|
Quote:
Originally Posted by Rmarsh
Tools of the trade back a few decades ago. I still prefer the folding lufkin rule for inside measurements. The spiral ratchet is just for nostalgia and to get a laugh out of the youngins.
And some of the crap work im going to fix.
|
seem funny to see a multi tool blade on the same table with those older tools.
|
|
|
|
|
02-20-2025, 02:24 AM
|
#45
|
|
Registered User
Join Date: Jan 2006
Posts: 1,974
|
Quote:
Originally Posted by Hookedagain
seem funny to see a multi tool blade on the same table with those older tools.
|
I love the old tools...but have adapted. Multitool was definitely a game changer. I worked for a gentleman from Portugal, who started as an apprentice at age 11, sent away from his home to work for a clock cabinet maker who treated him poorly. They built these beautiful and intricate grandfather clock casework as well as many others...ALL with hand tools. He came to this country and established his own company and became a success almost immediately. He and his sons now produce and install quality millwork for large commercial jobs.
More pics of the rehab house....nothing great.....not fun like new work.
|
|
|
|
|
02-20-2025, 09:30 AM
|
#46
|
|
Registered User
Join Date: Jan 2006
Posts: 1,974
|
built-ins for two different jobs....spence might have some comments on the TV location 
|
|
|
|
|
02-20-2025, 09:44 AM
|
#47
|
|
Registered User
Join Date: Nov 2003
Location: RI
Posts: 21,508
|
Quote:
Originally Posted by Rmarsh
More pics of the rehab house....nothing great.....not fun like new work.
|
Is that a palm tree motif on the wainscoting or am I seeing things?
|
|
|
|
|
02-20-2025, 09:49 AM
|
#48
|
|
Registered User
Join Date: Nov 2003
Location: RI
Posts: 21,508
|
Quote:
Originally Posted by Rmarsh
built-ins for two different jobs....spence might have some comments on the TV location 
|
I have three issues.
1) The TV above the fireplace as noted
2) The wall space left above and below a 16:9 flatscreen
3) Not sure why they didn’t install a proper recessed AV box to ensure the power plug or HDMI doesn’t interfere with the screen that likely will be angled down
|
|
|
|
|
02-20-2025, 12:47 PM
|
#49
|
|
Registered User
Join Date: Jan 2006
Posts: 1,974
|
Quote:
Originally Posted by spence
I have three issues.
1) The TV above the fireplace as noted
2) The wall space left above and below a 16:9 flatscreen
3) Not sure why they didn’t install a proper recessed AV box to ensure the power plug or HDMI doesn’t interfere with the screen that likely will be angled down
|
Excellent analysis...now go look up how to spell Canadian
|
|
|
|
|
02-20-2025, 01:35 PM
|
#50
|
|
Registered User
Join Date: Nov 2003
Location: RI
Posts: 21,508
|
Quote:
Originally Posted by Rmarsh
Excellent analysis...now go look up how to spell Canadian
|
tu ne parles pas français?
|
|
|
|
|
02-20-2025, 03:48 PM
|
#51
|
|
Registered User
Join Date: Jan 2006
Posts: 1,974
|
Quote:
Originally Posted by spence
tu ne parles pas français?
|
No
How do you say ...spence was incorrect but is using his wit instead of admitting his error.
|
|
|
|
|
02-20-2025, 05:27 PM
|
#52
|
|
Registered User
Join Date: Jan 2006
Posts: 1,974
|
Quote:
Originally Posted by spence
Is that a palm tree motif on the wainscoting or am I seeing things?
|
This whole house is fugly
|
|
|
|
|
02-20-2025, 05:36 PM
|
#53
|
|
Registered User
Join Date: Jan 2006
Posts: 1,974
|
Quote:
Originally Posted by spence
I have three issues.
1) The TV above the fireplace as noted
2) The wall space left above and below a 16:9 flatscreen
3) Not sure why they didn’t install a proper recessed AV box to ensure the power plug or HDMI doesn’t interfere with the screen that likely will be angled down
|
Your probably right about all of that. But are the built ins ok...or...too tall too wide...wrong color...too plain...too ornate not funtional...just ok...nice...good idea....bad idea. Just kidding I'm not that impressed with my work either.
|
|
|
|
|
02-20-2025, 05:48 PM
|
#54
|
|
Registered User
Join Date: Nov 2003
Location: RI
Posts: 21,508
|
Quote:
Originally Posted by Rmarsh
Your probably right about all of that. But are the built ins ok...or...too tall too wide...wrong color...too plain...too ornate not funtional...just ok...nice...good idea....bad idea. Just kidding I'm not that impressed with my work either.
|
Can’t go wrong with white. Not sure I’m a fan of the beadboard. Detail is appropriate but hard to tell all of your mistakes from the photos.
As for width it seems like on most of them you were constrained by previous construction so they are good for what you had.
|
|
|
|
|
02-20-2025, 05:53 PM
|
#55
|
|
Registered User
Join Date: Jan 2006
Posts: 1,974
|
So adequate?.....I'm thrilled
|
|
|
|
|
02-20-2025, 05:59 PM
|
#56
|
|
Registered User
Join Date: Nov 2003
Location: RI
Posts: 21,508
|
Quote:
Originally Posted by Rmarsh
So adequate?.....I'm thrilled
|

|
|
|
|
|
02-20-2025, 06:16 PM
|
#57
|
|
Registered User
Join Date: Jan 2006
Posts: 1,974
|
Quote:
Originally Posted by spence
|
I don't take offense of your comment...but you would not be a customer i would tolerate long.... pack up my #^&#^&#^&#^& and say nothing....or maybe tell you to find someone else.hidin:
Last edited by Rmarsh; 02-20-2025 at 06:26 PM..
|
|
|
|
|
02-20-2025, 06:37 PM
|
#58
|
|
Registered User
Join Date: Jan 2006
Posts: 1,974
|
Another photo of old photo to add to my digitized files.
Built this back in 1990? Framed, roofed, sided, interior finish work too.
There was a hatch and ladder to ascend to the widows walk
|
|
|
|
|
02-21-2025, 04:00 AM
|
#59
|
|
Registered User
Join Date: Jan 2006
Posts: 1,974
|
This job will drag on and on. Subs are in now after the demo to do rough wiring and plumbing. Owner didnt want to sell the place as is.....dumping a crapload of money....which he has plenty of....was the path he chose.
|
|
|
|
|
02-21-2025, 04:37 AM
|
#60
|
|
Registered User
Join Date: Nov 2003
Location: RI
Posts: 21,508
|
Quote:
Originally Posted by Rmarsh
This job will drag on and on. Subs are in now after the demo to do rough wiring and plumbing. Owner didnt want to sell the place as is.....dumping a crapload of money....which he has plenty of....was the path he chose.
|
I’m not understanding that section of drywall at an angle about 30” above the floor to the left of the shower?
|
|
|
|
|
 |
|
Posting Rules
|
You may not post new threads
You may not post replies
You may not post attachments
You may not edit your posts
HTML code is Off
|
|
|
All times are GMT -5. The time now is 12:51 AM.
|
| |